當前針型閥廣泛應用于城建、化工、冶金、石油、制藥、食品、飲料、環保中。

| 實驗項目 | 壓力值 |
|---|---|
| 公稱壓力 | 4 |
| 殼體實驗 | 6 |
| 密封試驗 | 4.4 |
| 氣壓試驗 | 2.4 |
| 適用溫度 | ≤180℃ |
| 適用介質 | 水、蒸汽、油品等 |
| 型號 | 閥體 | 接頭 | 閥桿 | 螺帽 | 填料 |
|---|---|---|---|---|---|
| J48-W-40 | 20# | 20# | 2Cr13 | 20# | PTFE |
| J48-40P | SS304 | SS304 | SS304 | SS304 |
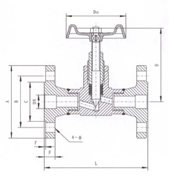
| 規格 | A | B | C | F | f | N-Ф | L | H | Do | 重量(kg) |
|---|---|---|---|---|---|---|---|---|---|---|
| DN10 | 90 | 60 | 41 | 14 | 2 | 4-φ14 | 130 | 90 | 63 | 2.0 |
| DN15 | 95 | 65 | 46 | 14 | 2 | 4-φ14 | 130 | 90 | 63 | 2.5 |
| DN20 | 105 | 75 | 56 | 16 | 2 | 4-φ14 | 150 | 105 | 90 | 3.5 |
| DN25 | 115 | 85 | 65 | 16 | 2 | 4-φ14 | 160 | 120 | 100 | 4.0 |
注:PN1.0、PN1.6、PN2.5、PN4.0法蘭尺寸一樣
主營產品:氣動調節閥 - 電動調節閥 - 自力式調節閥
版版權所有 © 上海大田閥門管道工程有限公司
地址:上海市浦東新區川宏路528號宏圖大樓5樓
