美標波紋管截止閥采用波紋管密封的設計,完全消除了普通閥門閥桿填料密封老化快易泄露的缺點,不但提高了使用能源效率,增加生產設備安全性,減少了維修費用及頻繁的維修保養,還提供了清潔安全的工作環境;適用于公稱壓力PN1.6~16MPa,工作溫度-29~350℃的石油、化工、制藥、化肥、電力等行業。
1、產品結構合理、密封可靠
2、密封面堆焊Co基硬質合金,耐磨、耐腐、抗摩擦性能好、使用壽命長
3、閥桿調質及表面氮化處理,有良好的抗腐和抗摩擦性能
4、零件材質及法蘭、堆焊端尺寸可根據實際工況或用戶要求合理選配,滿足各種工程需要
5、閥芯可根據需要做承切斷型和調節型

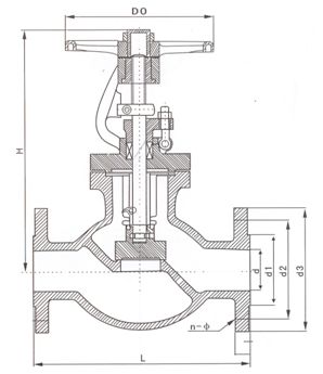
| 公稱壓力 | 公稱通徑 | 尺寸 | ||||||
|---|---|---|---|---|---|---|---|---|
| d | d1 | d2 | d3 | L | H | Do | ||
| 150Lb | 2 | 51 | 92 | 120.5 | 152 | 203 | 360 | 180 |
| 21/2 | 64 | 105 | 139.5 | 178 | 216 | 390 | 280 | |
| 3 | 76 | 127 | 152.9 | 190 | 241 | 410 | 280 | |
| 4 | 102 | 157 | 190.5 | 229 | 292 | 460 | 280 | |
| 5 | 127 | 186 | 216 | 154 | 356 | 480 | 320 | |
| 6 | 152 | 216 | 241.5 | 179 | 406 | 500 | 320 | |
| 8 | 203 | 270 | 198.5 | 343 | 495 | 560 | 400 | |
| 10 | 254 | 324 | 362 | 406 | 622 | 620 | 500 | |
| 12 | 305 | 381 | 432 | 483 | 698 | 690 | 600 | |
| 14 |
|
|
|
|
797 | 770 | 650 | |
| 300Lb | 2 | 51 | 92 | 127 | 165 | 267 | 370 | 180 |
| 21/2 | 64 | 105 | 149 | 190 | 292 | 400 | 280 | |
| 3 | 76 | 127 | 168.5 | 210 | 318 | 420 | 280 | |
| 4 | 102 | 157 | 200 | 154 | 356 | 470 | 280 | |
| 5 | 127 | 186 | 235 | 179 | 400 | 490 | 320 | |
| 6 | 152 | 216 | 270 | 318 | 444 | 510 | 320 | |
| 8 | 203 | 270 | 330 | 381 | 559 | 570 | 400 | |
| 10 | 254 | 324 | 387.5 | 445 | 622 | 630 | 500 | |
| 12 | 305 | 381 | 451 | 521 | 711 | 700 | 600 | |
| 14 |
|
|
|
|
838 | 780 | 650 | |
美標截止閥在管路中主要用來做切斷、分配和改變介質的流動方向。美標截止閥是近年來被廣泛采用的一種新型閥門。美標截止閥按其通道位置可分為直通式,三通式和直角式。后兩種閘閥用于分配介質與改變介質的流向。它有著自身結構所獨有的一些優越性,如開關無摩擦,密封不易磨損,啟閉力矩小。這樣可減小所配執行器的規格。配以多回轉電動執行機構,可實現對介質的調節和嚴密切斷。廣泛適用于石油、化工、城市給排水等要求嚴格切斷的工況。
主營產品:氣動調節閥 - 電動調節閥 - 自力式調節閥
版版權所有 © 上海大田閥門管道工程有限公司
地址:上海市浦東新區川宏路528號宏圖大樓5樓
