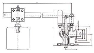
GA41/GA51型單杠桿安全閥適用于工作溫度≤450℃的空氣、蒸汽等介質的設備和管路上,作為超壓保護裝置。當設備和管路內壓力超過允許值時,閥門自動關閉,保證設備和管路的安全運行。該閥出口有套筒式、法蘭式二種,選購時應先核對確認。
該安全閥適用于城建、化工、冶金、石油、制藥、食品、飲料、環保

| 公稱通徑 DN(mm) |
尺寸(mm) | 重量 (kg) |
||||
|---|---|---|---|---|---|---|
| do | L
|
L1 | DN
|
H
|
||
| 40
|
32
|
120
|
110
|
290
|
630
|
25
|
| 50
|
40
|
135
|
310
|
310
|
630
|
30
|
| 80
|
65
|
160
|
345
|
345
|
630
|
55
|
單桿安全閥是為了防止壓力設備和容器或易引起壓力升高或容器內部壓力超過限度而發生爆裂的安全裝置。是壓力容器、鍋爐、壓力管道等壓力系統使用廣泛的一種安全裝置,保證壓力系統安全運行。
溫馨提示:
本文中所有文字、數據、圖片均只適用于參考。需要查看更多的GA41/GA51型單杠桿安全閥 性能參數、結構尺寸參數、價格等詳情,或要求印刷樣本,請聯系我們。
主營產品:氣動調節閥 - 電動調節閥 - 自力式調節閥
版版權所有 © 上海大田閥門管道工程有限公司
地址:上海市浦東新區川宏路528號宏圖大樓5樓
